















富宇東方明珠C6棟二房平車
《本文章內容係住宅/店面/土地/商辦/廠房等房地產或社區/建案簡介,僅供參考。您若有相關物件需求,敬請來電洽詢☺歡迎賣方、屋主、地主委託出售》
◆附近地標:好市多COSTCO
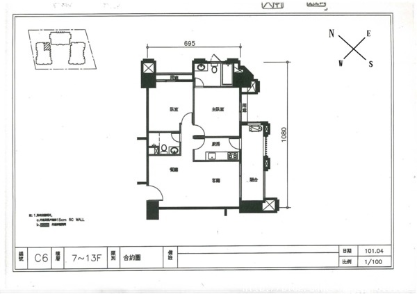
◆登記建坪: 46.6坪
◆主建物: 21.17坪
◆附屬建物: 3.72坪
◆公共設施: 11.71坪
◆車位: 10坪
◆土地坪數:
◆房屋類型:□中古屋/□新成屋/■預售屋
◆建物格局: 2房/ 2廳/ 2衛
◆房屋樓層:所在樓層 12樓/總樓層 27樓
◆屋齡:□約 年/■預售屋
◆房屋朝向:東南
◆停車位:□無/■坡道平面
◆電梯:■有/□無
◆管理方式:□無/■管理員.警衛
◆管理費:
◆座落區域商圈:竹科園區光復路商圈/COSTCO生活圈
◆鄰近生活機能:
*公車站/火車站:台鐵竹科(新莊)站
*學校(學區):龍山國小/光武國中
*公園:長春公園
*醫院:馬偕醫院新竹分院
*體育館/表演場所/圖書館:東區金山圖書館
*警察局:埔頂派出所
*百貨購物/市場/夜市:長春市場/好市多COSTCO
*停車場:科學園區陸橋下停車場
*交流道/省道:新竹交流道(光復路)
◆物件特色描述:
★聯絡我時,煩請您告知是在【udn部落格】看到的,感恩!
●富宇機構‧盛大建設「富宇東方明珠」基地座落新竹市東區慈雲路、綠園道與立鵬路口(光埔重劃區)。本案於2012年3月底公開,基地面積約1523坪,土地使用分區為商業用地,總銷約40億,預計2015年底完工。
●豐富多元之休閒公設為本案一大特色,擁有170坪社區閱覽室,另設有170坪健身房。規劃地上27層、地下5層、總戶數340戶(住326、店14)、坡道平面車位共452個之大樓社區。建約36~54坪,2~4房,公設比約32%。
●富宇建設在新竹市關埔特區推出電梯大樓「東方明珠」,與日本最大連鎖書店「紀伊國屋」合作,社區居民獨享170坪大書庫,打造優質書香社區。
●「東方明珠」在新竹市慈雲路、埔頂二路,基地1523坪,規畫地上27層、地下5層,住家326戶、店面13戶,住家31至55坪,每坪28至32萬,受首購和首換族矚目;店面每坪100至120萬。總銷約50億,預計105年完工。
●新竹科學園區聚集全國頂尖高學歷、高消費力的科技菁英。慈雲路是直通竹科大門的繁榮軸線,美式連鎖大型購物中心COSTCO及大型商業計畫帶動區域發展,慈雲路將成為新竹的科技CBD。
********************
◆房仲業:永慶房產集團/永慶不動產(新竹區)
◆經紀業名稱:國○不動產仲介經紀有限公司
*統一編號:534**367
◆營業地址:新竹市北區東大路四段/西濱路口
◆聯絡人:請指名--◇永慶阿健(陳先生)
*營業員證明:(95)登字第082**0號
◆服務專線:0917-027191
◆我的LINE -- ID:coke0927815658
*或LINE搜尋我的手機號碼✚好友!

===============
★網頁搜尋:永慶阿健--瀏覽更多我的房地產部落格。
★誠尋賣方/屋主/地主委託銷售…歡迎來電洽詢,竭誠為您服務!
★敬告房仲同業:㊣本部落格內容照片受著作權法保護,切勿侵權!
◆新竹市重劃區一覽(已完成市地重劃,已完成農村社區土地重劃,已完成區段徵收,辦理中市地重劃,辦理中農村社區土地重劃):新興重劃區,朝山重劃區,漁港重劃區,香美自辦重劃區,關長自辦重劃區,光埔自辦重劃區,港北自辦重劃區,東濱自辦重劃區,富山重劃區,浸水重劃區,南勢重劃區,港南重劃區,南隘重劃區,昇湖重劃區,新竹市東區東明自辦市地重劃案,新竹市東區光埔二期自辦市地重劃案,新竹市北區港清自辦市地重劃案,新竹市東區科商自辦市地重劃案,新竹市北區富美自辦市地重劃案,新竹市東區高峰自辦市地重劃案,新竹市東區溪橋自辦農村社區土地重劃案,新竹市北區福林自辦農村社區土地重劃案,新竹市北區金雅自辦農村社區土地重劃案,新竹市北區舊社自辦農村社區土地重劃案,新竹市東區水源自辦農村社區土地重劃案,新竹市東區前溪自辦農村社區土地重劃案,新竹關埔重劃區.關埔二期重劃區.光埔二期重劃區.千甲重劃區.水源重劃區.金雅重劃區.舊社重劃區.福林重劃區.港清重劃區.富美重劃區.科商重劃區.高峰高翠重劃區.溪橋重劃區.前溪重劃區. 新竹東區介壽段安康社區重劃區開發案.◆新竹市行政區域轄區各里:東區:東門里.文華里.中正里.三民里.親仁里.錦華里.榮光里.成功里.復興里.育賢里.復中里.千甲里.水源里.東山里.東勢里.前溪里.光復里.綠水里.東園里.公園里.建華里.光明里.立功里.豐功里.武功里.軍功里.建功里.埔頂里.仙宮里.龍山里.金山里.科園里.新莊里.關東里.仙水里.南門里.福德里.南市里.振興里.新興里.關帝里.頂竹里.寺前里.柴橋里.下竹里.高峰里.竹蓮里.新光里.南大里.湖濱里.光鎮里.明湖里.北區:西門里.潛園里.中央里.仁德里.崇禮里.石坊里.興南里.西雅里.育英里.曲溪里.台溪里.南勢里.大鵬里.客雅里.北門里.水田里.新民里.長和里.中興里.新雅里.中山里.民富里.文雅里.磐石里.大同里.光田里.士林里.福林里.古賢里.境福里.武陵里.光華里.湳雅里.金華里.舊社里.金竹里.金雅里.湳中里.南寮里.康樂里.海濱里.舊港里.港北里.中寮里.香山區:頂埔里.頂福里.中埔里.牛埔里.虎林里.虎山里.港南里.埔前里.樹下里.浸水里.香山里.大庄里.美山里.朝山里.東香里.香村里.海山里.鹽水里.內湖里.南港里.中隘里.南隘里.大湖里.茄苳里.
-
◇康樂里•南寮里⑤:宏家未來鎮惠比壽區凱悅特區宏家新視界擁月區宏國宏建設安欣信普建設優境南華新家,商港小城尊爵皇昱綠尊5期No.26,6ENo.28,9期A區10期上廣樂11 -
■海濱里•南寮里②:寶晨帝閣12京茂Harbor1祥亨建設吉祥大亨宏家未來鎮御台場區天秤座凱撒特區星雲特區吉邑開發貴築園逢榮大樓大宅院景藝輕嶼 -
■海濱里•南寮里⑥:上廣樂12宏家天蟹座大阪城春櫻區宏家麗京C區名人天下旭唐花博5竹益舞春風德明新城寶晨帝閣8陽光誠品2期3期詠賀朗峯磐銨南華陽光城市東大花墅 -
□港北里•港清重劃區:旭盛蘋果HOUSE,旭盛米勒居No.6,No.7,No.8,No.9,潤福豐謙,豪嘉境,勝益東濱,上廣樂No.9,玖懋建設〡御見首富,春福禾美 -
㊣㊣皇昱綠尊8期大器別墅_臨路邊間,五房三車位,宏觀社區旁∥鴻蕣朗讀宏國宏成家美嘉綸智豐建設港南之星 -
☹☹竹光路靜巷美寓_市區三房


