
MVRDV設計 阿姆斯特丹港邊的集合住宅Silodam
關於社會住宅,一定不能不提柯比意(Le Corbusier)1952年設計的《馬賽公寓》,他是第一位提出高樓概念的建築師。當年為了因應戰後急遽上升的人口以及安置中低收入的家庭,將原本長在地面的平房和庭院,像積木般一個一個往上疊,成了一座垂直Villa,可容納350個家庭、1600個居民。裡面除了居住單元之外,也提供了一個社區的基本需求,有商店街、超市、托兒所、健身房、游泳池、體育館…就像一座微型城市,食衣住行育樂自給自足。

柯比意(Le Corbusier)1952年設計的《馬賽公寓》

MVRDV設計的港邊集合住宅Silodam(右座),遠遠望去像一艘航向遠洋的大貨輪
19世紀有柯比意的馬賽公寓,那麼21世紀的集居形式有何改變呢?那絕不能錯過目前最夯、來自荷蘭的三人建築團隊MVRDV。乍看以為是搖滾樂團的名字,其實是取自三位年輕建築師各自姓氏的第一個字母組合而成(Winy Maas、Jacob van Rijs、Nathalie de Vries)。在荷蘭政府完善的住宅政策下,年輕人買房子不再是遙不可及的夢想。
共居、共融性、群組化、高坪效、識別度…是MVRDV的住宅關鍵字。他們設計的建築外觀並不符合主流美學,甚至有點醜怪,但當你仔細研究其中的奧秘,便不得不佩服他們用「量化」研究的方式在設計集合住宅。例如阿姆斯特丹港邊的Silodam、The Whale鯨魚集合住宅,以及本人曾寫過一首短詩介紹、外觀像一個個出挑大抽屜的WoZoCo老人公寓。立地環境都相當好,不是面海就是大片公園綠地,住便宜的社會住宅一點都不委屈。



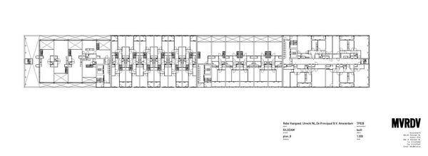
就以港邊集合住宅Silodam來說,遠遠望去像一艘航向遠洋的大貨輪。它的住宅單元(type)相當多,集合了住家、辦公、商業空間、公共空間,有15種戶型以滿足買家不同需求。外觀上用顏色將之「群組化」mark起來便於分類,一個群組代表一個「街區」,每個街區都用不同的材料、窗戶和顏色表達,集合起來就是超級大社區。看似密密麻麻的鴿子籠,最精彩的是每間住宅都配置一個戶外空間,或陽台或露台或內向庭院,絕大多數都能眺望眼前的無敵海景,跟柯比意的馬賽公寓一樣有空中花園、兒童遊戲區、車庫…等公共空間,為上百戶的家庭創造了不同的空間需求。另一個位於西班牙馬德里Mirador,在設計上也有共通性。





由此可見,建築立面上的色彩配置並非只是增加外觀上的律動感,而是每種顏色都有它的目的性,比如說橘紅代表的是公共空間,黃色、紫色區塊代表另一種住宅單元,遠遠一看便能識別我家在哪裡。以顏色來區分的最大好處是,我家住在「藍色情挑」,你家住在「白色情迷」,他家住在「紅色情深」,行走其間不致走錯樓層亂了方位。
此設計概念讓我想起巴黎那座很前衛的美術館《龐畢度中心》,五顏六色的大水管有如「內衣外穿」全都露。建築師將結構體用不同色系區別:綠色是水管、藍色是空調,黃色管線是電路系統,紅色是電梯和手扶梯。這樣的設計能夠讓室內空間保持完整,樓面完全沒有樑柱,減少卡卡角角便於利用。顏色成了建築體的一種識別,一種有內涵的外顯。

巴黎龐畢度中心
MVRDV蓋很多國宅、老人院、公共建築,空間機能是首要考量。在他們的理念中,關注城市發展與社會現象,幫助市民解決居住問題,遠比幫有錢人蓋豪宅來得有意義。因此在他們設計案中,你絕對看不到豪華氣派的大門廳、昂貴的建材,而是把心放在每一個方盒子裡的分寸拿捏,想盡辦法將自然的元素引進來,讓人與人、人與自然更靠近。
又如他們1997年的成名作WoZoCo老人公寓,懸挑設計的大箱子就這麼掛在立面上,其他三面毫無支撐。事實上這麼奇特的外觀並非後現代炫技的操弄,而是原本計畫蓋100間公寓,但在高度與日照規定下只能蓋87間,但MVRDV又不願為此水平式擴建而犧牲掉基地前的公園綠地,於是突發奇想把剩下的13間懸吊在主要建築體之外,此顛覆性的手法反而成為創舉,堪稱地表最特別最Colorful的老人公寓。

WoZoCo老人公寓
MVRDV設計的建築像一篇行文流暢的白話文,沒有咬文嚼字的艱澀詞彙或者抽象到不行的夢幻囈語,看似率性的直白卻是內力深厚的顯現。反觀台灣強調的「居住正義」早已淪為政府打房的口號,無法拿出具體政策讓人民租者適其屋、住者有其屋,一輩子為了找房子搬家,三分之二的薪水拿來繳房貸,只好把希望寄託在每期的大樂透祈求早日脫貧…你說這樣活著能有什麼正義可言。
【延伸閱讀】
阿姆斯特丹港邊的Silodam集合住宅:
https://www.dezeen.com/2015/07/28/silodam-mvrdv-housing-amsterdam-harbour-movie-nathalie-de-vries/
2樓. 還款方式多樣2025/05/24 11:41澎湖借錢XD借錢網借貸流程簡單,線上申請審核快速,利率合理透明,資金撥款速度快。客服專業且回應迅速,還款方式多樣。是我用過最方便的借貸平台之一,推薦大家參考使用,讓借貸更輕鬆。
- 1樓. charleyho2018/07/06 04:14設計是個好東西,經過設計顯現價值;台灣很缺設計力。或者可能是口號太多而行動太少,資源錯置了。




















