3D室內設計作業-2
2009/02/03 19:25
瀏覽487
迴響1
推薦2
引用0

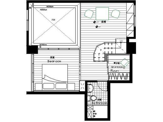
--後來再重算的圖
下方兩張圖是後來被我決定要用來畫3D的平面圖
改了那麼多次,還是覺得不夠好,還是想要再改
可是一想到改平面....就連立面圖也要改....
立面圖改....那3D建模也要重畫....
3D建模要重建就了於要整個重零開始.......=_=![]()
真令我想要大叫.....so只好先將這念頭打消了
嗯嗯!圖就這樣給它產生了


你可能會有興趣的文章:
迴響(1) :
- 1樓. GCY2009/02/03 19:32RE
你厲害!
我喜歡

謝謝你喜歡囉!給了我信心呢!
now 於 2009/02/03 19:46回覆




